Produtos

Perfil L


Este é o sistema adequado para suportar elementos verticais, permitindo várias opções de desenho de fachadas.

Projetado especificamente para acelerar e simplificar o processo de instalação.

Este produto, é inserido na ranhura do esquadro previamente fixado ao suporte; seja estrutura em aço, tijolo ou madeira.

O perfil L pode ser ajustado para alinhar, nivelar e fixar usando pontos fixos e deslizantes posicionados para permitir a expansão e contração destes perfis.

A seleção dos materiais, a serem utilizados na construção de um sistema de subestrutura, numa fachada ventilada, é de extrema importância.

A escolha do material, também pode afetar o desempenho térmico da fachada ventilada em geral, além da garantia de engenharia.
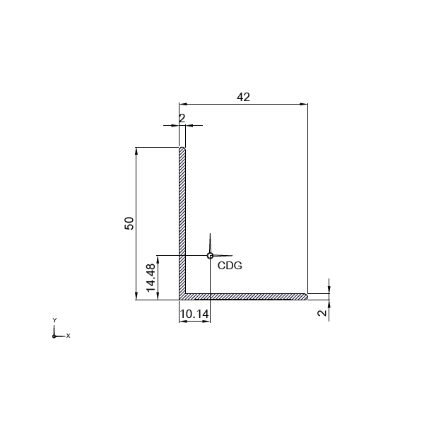
Perfil L
Dimensões 42x50 mm 
Perímetro 196 mm